Skip to main content

Disclaimer: Only “roll call” votes are recorded.

Disclaimer: Only the attendance of committee members is recorded for committee meetings.

File #: 16DEVPLAN1066    Version: 1 Name:
Type: Planning Case Status: Passed
File created: 6/10/2016 In control: Development Review Committee
On agenda: 6/15/2016 Final action: 6/15/2016
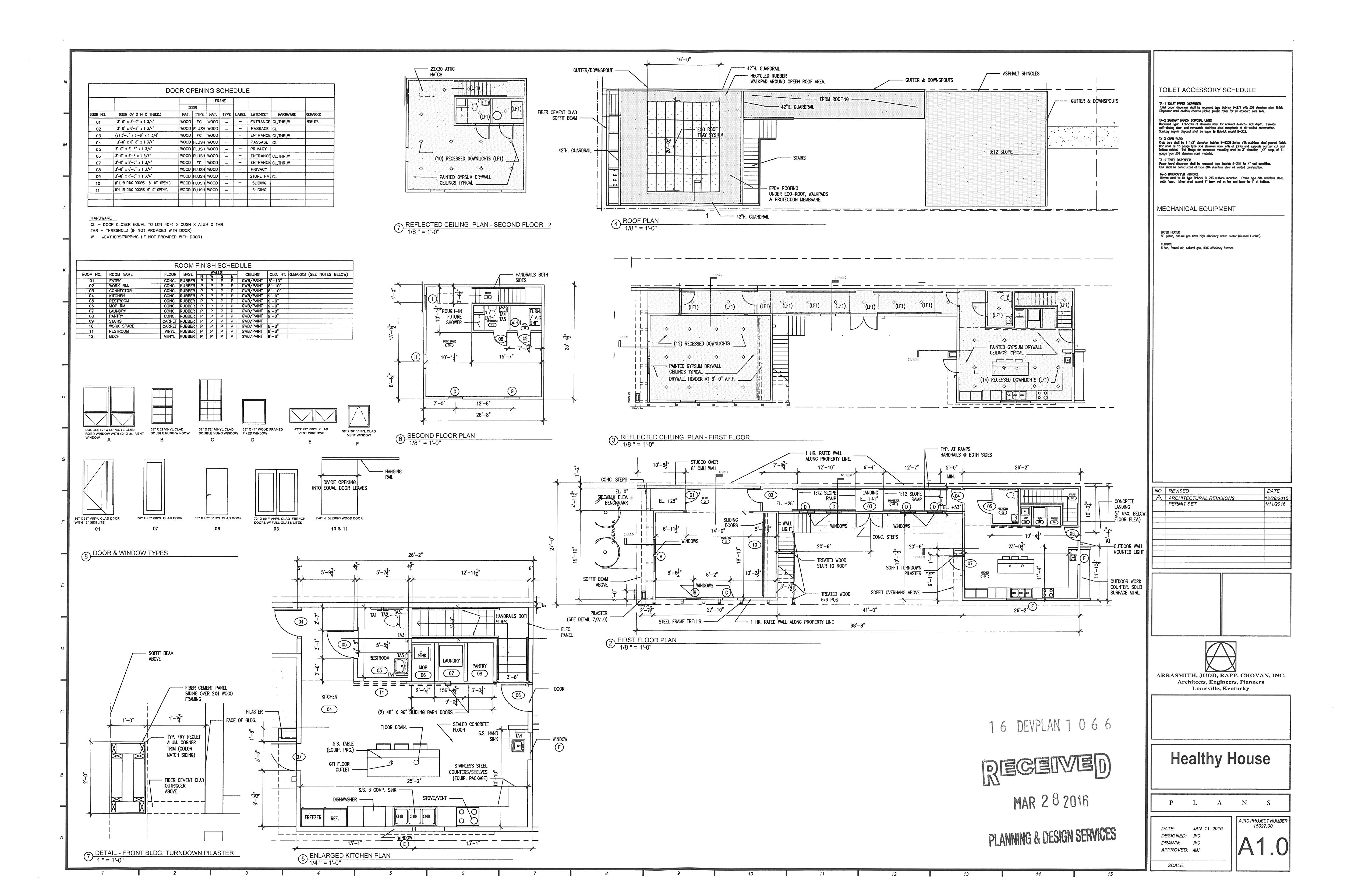
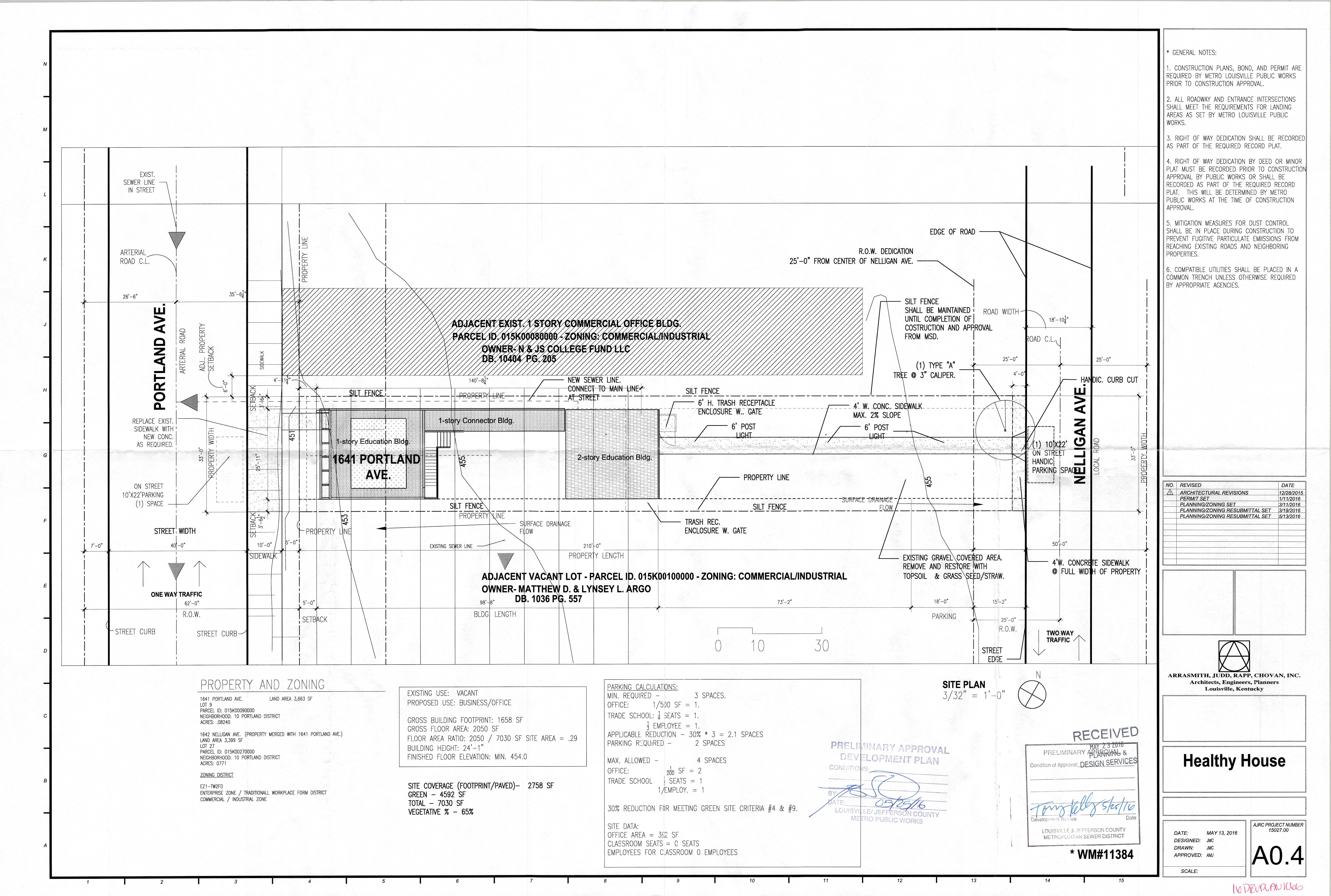
Title: Request: New construction of a 2050 square foot office for Louisville Grows located at 1642 Portland Ave. Project Name: 1641 Portland Avenue Location: 1641 Portland Avenue Owner: Valerie Magnuson - Louisville Grows Applicant: Jeremy Vokurka - Realm Construction Representative: Kelli Jones - Sabak, Wilson, and Lingo Inc. Jurisdiction: Louisville Metro Council District: 5 - Cheri Bryant Hamilton Case Manager: Ross Allen, Planner I
Attachments: 1. 16DEVPLAN1066_Staff Report, 2. DRC Notice of Public Meeting 16DEVPLAN1066_1641 Portland Ave, 3. Elevations, 4. Floor Plans, 5. Foundation and Framing Details, 6. Notice of Development Application, 7. Ordinance 21 -2008 for Cat 3 Review in the Portland Neighborhood, 8. Plan Notes Page 2, 9. Plan Notes Page 3, 10. Portland NOW Inc. Letter of Support, 11. Roof Awnings and Trim, 12. Sections and Details, 13. Site Plan Page 1, 14. TARC email

Title

Request:                     New construction of a 2050 square foot office for Louisville Grows located at 1642 Portland Ave.

Project Name:                     1641 Portland Avenue

Location:                     1641 Portland Avenue

Owner:                     Valerie Magnuson - Louisville Grows

Applicant:                     Jeremy Vokurka - Realm Construction

Representative:                     Kelli Jones - Sabak, Wilson, and Lingo Inc.

Jurisdiction:                     Louisville Metro

Council District:                     5 - Cheri Bryant Hamilton

Case Manager:                     Ross Allen, Planner I